2-к. квартира, 46.1 м², 1/3 эт.

1 158 000₽

Характеристики

  • Общая площадь: 46.1 м²
  • Этаж: 1
  • Комнат в квартире: 2
  • Жилая площадь: 23.6 м²
  • Тип дома: Кирпичный
  • Площадь кухни: 8.3 м²
  • Этажей в доме: 3

Описание

Реализуется имущество, поступающее в собственность залогодержателя при обращении взыскания как на предмет залога

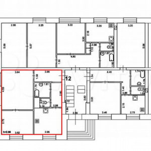
Объект (ID I14229454): 2-комнатная квартира общей площадью 46.10 кв.м. Дом кирпичный.
Адрес: Россия, Самарская область, г. Новокуйбышевск, Суворова ул, д. 19а, кв. 12.

Текущая стоимость объекта: 1,158,000.00

Дополнительная информация по телефону, указанному в объявлении, ежедневно с 04-00 до 20-00 (по времени г. Мск, GMT+3).

Объект расположен в районе с хорошо развитой инфраструктурой, что обеспечит жителям современный уровень комфорта. Внутренняя отделка: Требует косметического ремонта

Действующее обременение - наличие проживающих и зарегистрированных лиц на объекте недвижимости.

ОКРУЖАЮЩАЯ ИНФРАСТРУКТУРА: Школа, Прод. магазин, Остановка общ.транспорта.

ДЕЙСТВУЮЩИЕ ОБРЕМЕНЕНИЯ ПО ОБЪЕКТУ: залог.

СПОСОБЫ ОФОРМЛЕНИЯ СДЕЛКИ: покупка актива на внешней площадке

ИНДИВИДУАЛЬНЫЕ И ТЕХНИЧЕСКИЕ ХАРАКТЕРИСТИКИ ОБЪЕКТА:

Транспортная доступность: В черте города

Общая площадь (кв. м.): 46.10

Жилая площадь (кв. м.): 23.60

Площадь кухни (кв. м.): 8.30

Количество комнат: 2

Высота потолков (м.): 2.98

Этаж: 1

Этажность: 3

Количество санузлов: 1

Санузел: Раздельный

Принадлежность к рынку: Вторичка

Коммуникации:
Водоснабжение, Канализация, Энергоснабжение, Отопление

Характеристики здания, в котором располагается объект:
Год постройки: 1960

Настоящее объявление размещено в рамках реализации ПАО Сбербанк имущества, приобретенного в целях обеспечения деятельности ПАО Сбербанк, имущества, на которое обращено взыскание как на предмет залога, а также полученного по договору в качестве отступного.

ПАО Сбербанк. Генеральная лицензия Банка России на осуществление банковских операций № 1481 от 11.08.2015

Адрес

Самарская область, Новокуйбышевск, ул. Суворова, 19А


Сеть городских порталов: Купить квартиру в Южно-Сахалинске